开云·体育

产品工艺

产品中心

你所在的位置:开云·体育 > 产品工艺 > 产品中心

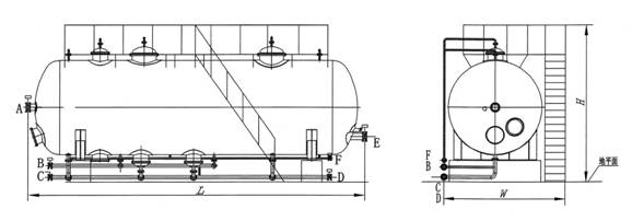
GJXC-型高效聚结斜管除油器

新信息来源:发布时间:2014/8/23 16:11:12

  产品简介

  海吉雅公司GJXC-型高效聚结型油水分离器是根据粗粒化原理及浅池理论研制而成的一种新型油水分离器,该设备处理效率高(>90%),停留时间短(为常规分离设备的35~50%),占地面积少(为常规分离设备的50%),采用压力式密闭运行,运行平稳、安全可靠,收油排泥方便。适用于流量波动的来水,便于实现自动化控制。

  产品特性

  1.设计合理,密闭运行无污染

  2.双级分离区,促进细小油珠及固体小颗粒的去除。

  3.耐腐蚀的聚结材料合理级配,有利于油珠聚结。

  型号说明

 

  技术参数

 

  安装尺寸

 

  

Copyright © 2017 开云·体育-开云(中国) All Rights Reserved. 备案号: 技术支持: